Anindya Residence 3

Alamat : Mungkajang, Palopo City, South Sulawesi, Indonesia
Okt, 2025
gambar
gambar
gambar
gambar
gambar

Keterangan :

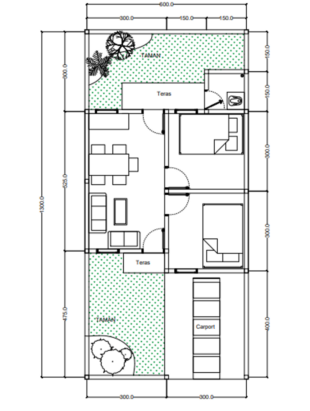
Tipe 36 (subsidi), Harga: Rp 168.000.000 ,Luas Bangunan: 36m 2, Luas Lahan: 78m 2, Kamar Tidur: 2, Kamar Mandi: 1, BAJA RINGAN, BATA RINGAN, KERAMIK & BATU KALI.

Butuh Bantuan?

Hubungi marketing kami untuk mendapatkan informasi lebih lanjut.

Muhammad Rival Minda
Marketing PT. Bumi Adyguna Permai
Muhammad Rival Minda
0822
Nurfadilah
Marketing PT. Bumi Adyguna Permai
Nurfadilah
085241099640
Fitri
Marketing PT. Bumi Adyguna Permai
Fitri
0812